Property ID: 1P0883
23 Moorlands Road Hectorville SA
Prime Development Opportunity with Existing Planning Consent!
Ready for your project - demolition will be completed and development approval granted prior to settlement.
A rare opportunity for developers and investors!
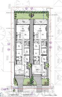
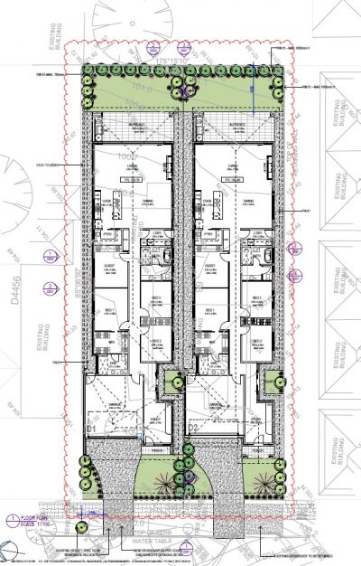
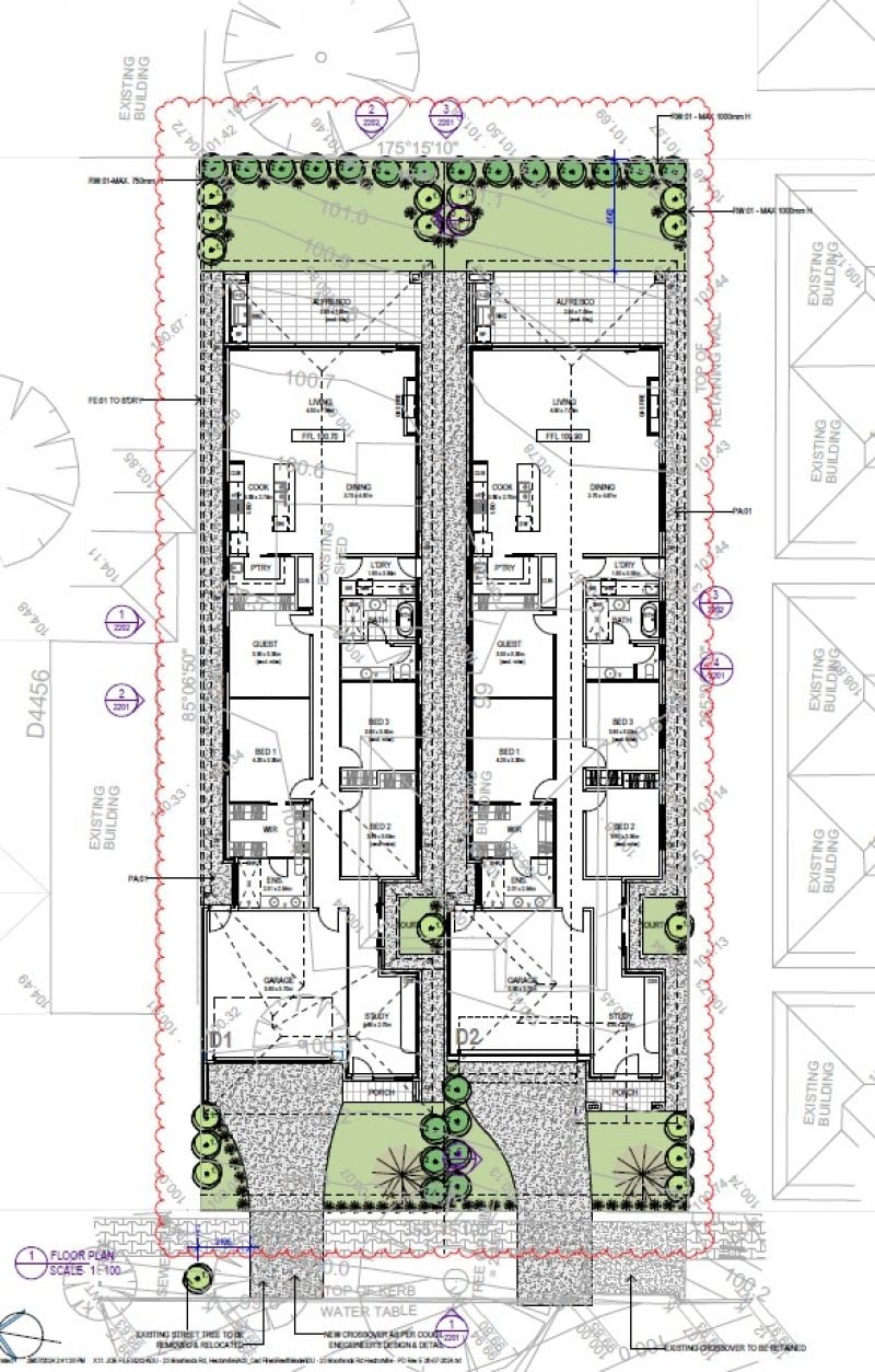
Set on a substantial 845sqm (approx.) allotment with a 19.81m frontage x 42.67m depth, this property comes with Planning Consent for two architecturally designed modern dwellings - the groundwork is done for your next premium project.
Demolition works have commenced and will be completed shortly, providing a clean site for immediate redevelopment.
Alternatively, developers may reconfigure or seek approval for multiple dwellings (STCC) to further optimise yield and capital return.
Key Investment Highlights:
- 845sqm (approx.) level site with 19.81m (approx.) wide street frontage
- Planning Consent for two high-end, custom-designed homes, Development Approval is in progress will be ready prior to settlement
- Demolition in progress – clear site available soon
- Potential for multi-dwelling development (STCC)
- Zoned for strong demand area with proven resale results
- Close to schools, transport, reserves, parks and shopping precincts (Newton, Firle, Campbelltown & Norwood)
A prime turnkey project site in Adelaide's thriving east - ideal for builders, developers, or syndicates ready to act.
A rare opportunity for developers and investors!
Set on a substantial 845sqm (approx.) allotment with a 19.81m frontage x 42.67m depth, this property comes with Planning Consent for two architecturally designed modern dwellings - the groundwork is done for your next premium project.
Demolition works have commenced and will be completed shortly, providing a clean site for immediate redevelopment.
Alternatively, developers may reconfigure or seek approval for multiple dwellings (STCC) to further optimise yield and capital return.
Key Investment Highlights:
- 845sqm (approx.) level site with 19.81m (approx.) wide street frontage
- Planning Consent for two high-end, custom-designed homes, Development Approval is in progress will be ready prior to settlement
- Demolition in progress – clear site available soon
- Potential for multi-dwelling development (STCC)
- Zoned for strong demand area with proven resale results
- Close to schools, transport, reserves, parks and shopping precincts (Newton, Firle, Campbelltown & Norwood)
A prime turnkey project site in Adelaide's thriving east - ideal for builders, developers, or syndicates ready to act.
